ZLECĘ BUDOWĘ DOMU SZKIELETOWEGO
Faszcze gm. Mikołajki Pokaż na mapie ›
Ogłoszenie archiwalne Wygasło: Niedziela, 19 Październik, 2025 19:08
Szczegóły ogłoszenia
- Kategoria: Dam zlecenie / Budowlane
Opis oferty
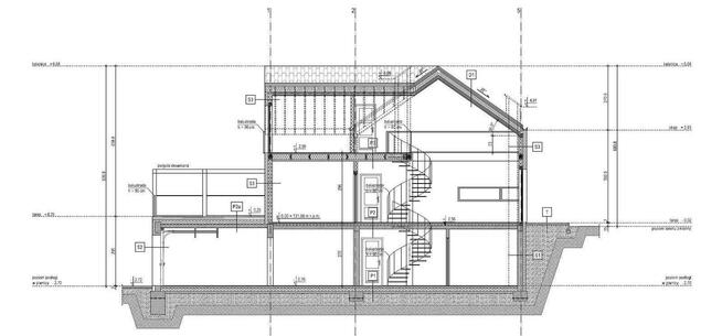
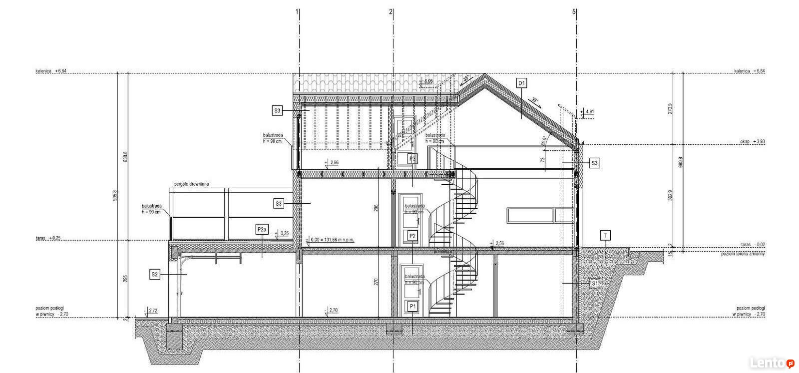
Poszukuję osób, firmy która wybuduje drewniany dom szkieletowy na bazie indywidualnego projektu. Lokalizacja woj. Warmińsko-Mazurskie 10 km od Mikołajek . Część piwniczna wykonana , zamknięta.Więcej dokumentacji prześlę po kontakcie.
Sprawdź zainteresowanie tym ogłoszeniem
Wyświetlenia
Data dodania
Ostatnio widziany
Obserwujących
Wysłane zapytania
Odsłony telefonu
To ogłoszenie jest archiwalne i może być nieaktualne.
Tomasz N.
Konto prywatne
Na Lento.pl od 06 mar 2022
Odpowiada szybko
Strona użytkownika
- Wypromuj ogłoszenie
- Zgłoś naruszenie
- Drukuj ulotkę
- Edytuj/usuń ogłoszenie
- Udostępnij ogłoszenie
- Dodaj na Facebook






